Hydraulische Servoventile von Schneider-Servohydraulik GmbH
AXXERON Hydraulics GmbH Westfalen > Hydraulische Servoventile
Servoventile für die elektrohydraulische Regeltechnik

Hydraulische Servoventile

Das Servoventil ist das Herzstück jeder elektrohydraulischen Regelung. Die Einhaltung der statischen und dynamischen Kennwerte erfordert Geräte höchster Qualität. Die Kolbenschieberventile in ein- und mehrstufiger Ausführung erfüllen durch 100% Qualitätskontrolle diese Kriterien hervorragend.

Servoventile von AXXERON Hydraulics, der Marke Schneider Servohydraulics,  zeichnen sich durch hohe Zuverlässigkeit und Servicefreundlichkeit aus. Unser Servoventilprogramm umfasst Ventile in ein-, zwei- und dreistufiger Ausführung im Durchflussbereich von 0,4 bis 250 l/min. Neben dem umfassenden Standardprogramm liefern wir auch viele applikationsbezogene Ventilausführungen wie spezielle Kennlinien, leckölarme Kolben, zwei Rücklaufkanten oder hochdynamische Ventile.

Einstufiges System mit oder ohne Elektronik

Lochbild NG 6

Schaltzeichen HVM 061-063

HVM 061 / HVM 063

Schaltzeichen HVM 065

HVM 065

Lochbild NG 10

Schaltzeichen HVM 061-063

HVM 027

Zwei- und mehrstufige Systeme mit oder ohne Elektronik

Lochbild NG 6

Schaltzeichen HVM 062-064

HVM 062 / HVM 064

Lochbild NG 10

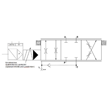
Schaltzeichen HVM 057-067

HVM 057 / HVM 067
HVM 090

Lochbild NG 16

Schaltzeichen HVM 106-107 | Schneider Servohydraulics

HVM 107

Lochbild NG 25

Schaltzeichen HVM 250 | Schneider Servohydraulics

HVM 250

Servohydraulik von Schneider Servohydraulics

Sonderausführungen

Neben dem umfangreichen Standardprogramm liefert Schneider Servohydraulics eine Vielzahl von Sonderventilen, die applikationsspezifische Merkmale aufweisen:

  • Ventile mit sehr kleinem Durchfluss für genaue Positionierung < 0,4 l/min
  • Ventile mit geknickter oder progressiver Kennlinie
  • Hochdynamische Ventile für Nibbelantriebe t = < 3 ms
  • Schockfeste Ventile für Stöße > 100G, an Stanzmaschinen
  • Ventile für spezielle Medien wie Bremsflüssigkeit
  • Pneumatische Servoventile für hochwertige Druck- und Positionsregelung

Sondermodelle

  • HVM 025
  • HVM 055
  • HVM 068
  • HVM 106
  • HVM 026
  • HVM 056
  • HVM 071
  • HVM 107

Druckventile

Neben den hydraulischen Servoventilen bieten wir auch unsere Druckregelventile HVD 306 an. Gerne lassen wir Ihnen hierzu weitere Informationen zukommen.

Servohydraulic-Elektronik
Schreiben Sie uns

Kostenloses Angebot anfordern

    *Pflichtfelder